Résidence Côté Parc
Construction neuve | Logement collectif
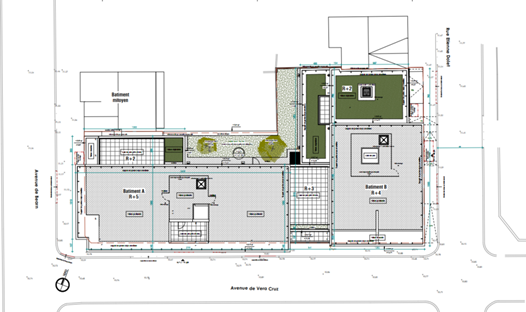
CONSTRUCTION DE 29 LOGEMENTS – avenue de Véra Cruz à Saint-Nazaire.
SOUS SOL qui résiste à la sous pression
1 bâtiment en R+4
1 bâtiment en R+5
Pour ce projet PEZZO Ingénierie a réalisé les études structure d’exécution, plans de coffrage et ferraillage, DET, OPC, AO-DOE, levée des réserves.
Architecte : MAGNUM
Gros Œuvre : GUIHENEUF ET FILS
MOE : EXETERA Ingénierie
GROUPE ARC
4 403 K € HT
Saint-Nazaire - 44
Livraison : 2025
2 062 m²





