Naval Group B23
Bâtiment industriel | Construction neuve
Construction d’un bâtiment de stockage sec.
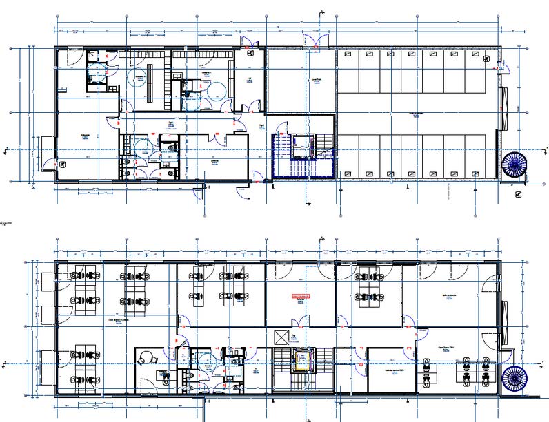
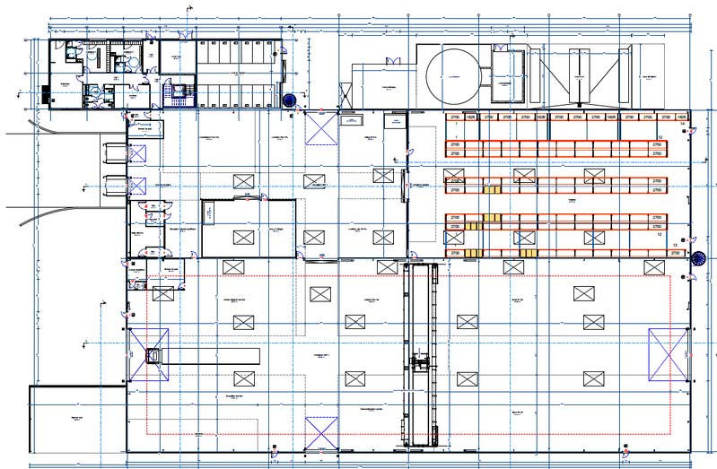
Le bâtiment de stockage comprend :
- 1 Bâtiment de stockage de 4600 m² fondé sur pieux, avec un
dallage sur inclusion rigide (renforcement de sol) - 1 Bâtiment de bureaux et local de charge en R+1 2*385m², sur
pieux et dallage sur inclusion rigide, plancher haut local de charge : dalle alvéolaire - Local gardien 2*37m²
- Fondations (pieux) pour ombrières parking de 3320m²
Pour ce projet, le bureau d’études a réalisé ces mission :
- Pré-étude GO
- Une visio de mise au point
- Descente de charge sur pieux
- Mise à jour zone bureaux suivant derniers plans et RICT
- Fondations ombrières
Gros-Œuvre : BOISSEAU BATIMENT
BET Structure métallique : EXAMETAL
NAVAL GROUP
La Montagne - 44
En cours


